以下资料源于TEREX-DEMAG对AC500-2的官方介绍。翻译不准确的地方还请各位指正!
特征概览:
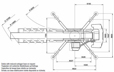
基本参数
| 最大起吊能力 / 作业半径: | 500 吨 / 3 米 |
|---|---|
| 主臂: | 14,7 – 56 米 |
| 主臂延长臂: | 6 – 30 米 |
| 最大吊臂系统长度: | 51,8 + 90 + 4 = 145,8 米 , 可动飞臂 |
| 固定飞臂: | 8,4 – 62,4 米 |
| 可动飞臂: | 24 – 90 米 |
| 运输总长: | 19,3 米 |
| 运载车长度: | 17,15 米 |
| 车辆转弯半径(以主臂顶部计算): | 15,8 米 |
| 运载车发动机: | DaimlerChrysler OM 502 LA (448 千瓦 / 610 马力) |
| 上层结构发动机: | DaimlerChrysler OM 906 LA (205 千瓦 / 279 马力) |
| 最大巡航速度: | 64 千米/小时 |
| 驱动 / 转向: | 16 x 8 x 14 |
| 轮胎: | 14.00 |
| 最大爬坡能力: | 36 % |
| 最大配重: | 160 / 180 吨 |
| 轴载荷:(包含主臂、支撑腿和吊钩) | |
|---|---|
| 轴 |
8轴*12吨
|
| 总计 |
96吨
|
| 工作速度(无极可变): | |||
|---|---|---|---|
|
机制
|
正常速度
|
最大允许线缆拉力
|
线缆直径/线缆长度
|
|
主线圈1
|
最大130米/分钟
|
125千牛
|
24毫米/600米
|
|
主线圈2
|
最大154米/分钟
|
125千牛
|
24毫米/720米
|
|
回转
|
最快0.8/分钟
|
||
|
伸缩速度
|
14.7-56米:约420秒
|
||
|
主臂直立
|
-0.5度–+83度:85秒
|
||
| 载车表现: | |
|---|---|
| 巡航速度 |
0–64千米/小时
|
| 吊钩: | ||||||
|---|---|---|---|---|---|---|
|
型号
|
允许载重
|
滑轮个数
|
重量
|
“D”
|
线缆条数
|
重型起吊附件
|
|
320
|
222.9吨
|
11个
|
3.2吨
|
4.5米
|
20
|
2个附加滑轮
|
|
250
|
212.8
|
9
|
2.6
|
4.5
|
19
|
2个附加滑轮
|
|
200
|
177.0
|
7
|
2.3
|
3
|
15
|
|
|
160
|
132.4
|
5
|
1.9
|
3
|
11
|
|
|
100
|
85.9
|
3
|
1.8
|
3
|
7
|
|
|
40
|
37.6
|
1
|
0.75
|
2.7
|
3
|
|
|
12.5
|
12.6
|
单线吊钩
|
0.5
|
2
|
1
|
|

主臂长度:14.7米–56米
以下数据指单独主臂起吊。臂长指主臂基座到臂头的长度。
|
臂长
|
作业半径
|
SSL状态
|
配重
|
方向
|
状态
|
起吊能力
|
|---|---|---|---|---|---|---|
|
14.7米
|
3米
|
无
|
180吨
|
吊臂向后
|
MAX
|
500吨(*)
|
|
56米
|
52米
|
160吨
|
360度
|
MIN
|
16.2吨
|
|
|
14.7米
|
3米
|
0
|
MAX
|
257吨
|
||
|
28.6米
|
24米
|
MIN
|
2.1吨
|
|||
|
33.2米
|
6米
|
0度SSL
|
180吨
|
MAX
|
187吨
|
|
|
56米
|
52米
|
MIN
|
18.6吨
|
|||
|
33.2米
|
6米
|
80吨
|
MAX
|
187吨
|
||
|
56米
|
52米
|
MIN
|
2.5吨
|
(*)该状态还要求附加中央支撑腿、双吊钩。
2、主臂加延长臂起吊

延长臂长度:6米–30米
以下数据臂长指延长臂长度,此时主臂长度为56米。
|
副臂长
|
副臂与主臂角度
|
作业半径
|
SSL状态
|
配重
|
方向
|
状态
|
起吊能力
|
|---|---|---|---|---|---|---|---|
|
6米
|
0度
|
12米
|
无
|
140吨
|
360度
|
MAX
|
48.4吨
|
|
30米
|
0度
|
80米
|
MIN
|
3.2吨
|
|||
|
6米
|
0度
|
12米
|
40吨
|
MAX
|
48.4吨
|
||
|
24米
|
0度
|
40米
|
MIN
|
2.1吨
|
|||
|
6米
|
0度
|
9-18米
|
0度SSL
|
180吨
|
MAX
|
50吨
|
|
|
30米
|
20度
|
76米
|
MIN
|
7.5吨
|
|||
|
6米
|
0度
|
9-18米
|
100吨
|
MAX
|
50吨
|
||
|
30米
|
20度
|
72米
|
MIN
|
2.4吨
|
|||
|
12米
|
0度
|
12米
|
30度SSL
|
180吨
|
MAX
|
49吨
|
|
|
30米
|
0度
|
76米
|
MIN
|
7.4吨
|
|||
|
12米
|
0度
|
12米
|
100吨
|
MAX
|
49吨
|
||
|
30米
|
0度
|
68米
|
MIN
|
2.5吨
|
3、固定式飞臂

固定式飞臂实际也分为两段,一段连着主臂头,和主臂成0度,不能改变角度。另一段则可以选择角度,包括20度、40度。不过飞臂总长在8.4、14.4、20.4米时,整个飞臂都只能选择0度。
通过不同的选择组合,固定式飞臂长度最多可以达到62.4米。
一样,在此情况下的起吊能力也与配重、臂长、作业半径、SSL状态等多个参数有关。有兴趣的可以去查看AC500的官方PDF,这里就看下最长臂、最大作业半径的情况,其他就不啰唆了(因为实在是很复杂的表格)。
在主臂56米、固定飞臂62.4米,飞臂0度、最大作业半径52米处,通过配重80吨,起吊能力是2.4吨;而在飞臂20度、40度的地方,最大作业半径56米,起吊能力则是2.0吨和2.3吨。
假如配上SSL系统,则在主臂56米、固定飞臂62.4米,飞臂0度、最大作业半径上升到78米,此时通过160吨配重、30度SSL,起吊能力是2.4吨;对飞臂20度、40度,此时120吨配重和0度SSL在66米最大作业半径下起吊能力分别是2.1吨和2.2吨。
4、可动式飞臂

可动式飞臂是安装后从主臂头部开始的整个都可以自由旋转的,通过缆绳控制其角度。
可动式飞臂最长可以到90米;这样加上主臂的51.8米,以及连接段的4米,整个吊臂系统长度可以达到145.8米!!!
同上,在此情况下的起吊能力也与配重、臂长、作业半径、SSL状态等多个参数有关。这里就看下最长臂、最大作业半径的情况。
在主臂51.8米、连接件4米、可动飞臂90米,主臂固定83度(和水平面),最大作业半径94米处,120吨配重下,起吊能力为3吨。
假如配上SSL系统,则在主臂51.8米、连接件4米、可动飞臂90米,主臂固定83度,最大作业半径94米处,160吨配重、60度SSL,起吊能力为6.7吨;而在主臂固定角度73度和65度下,通过180吨配重,30度SSL,在106米最大作业半径下起吊能力分别是4.4吨和2.2吨。
| 运载车 | |
|---|---|
| 驱动/转向 | 16*8*14 |
| 框架 | DEMAG制造的特殊主框架,使用高强度细密纹结构钢材,中央部位罐状,折叠式支撑腿收放盒 |
| 支撑腿 | 4点系统,伸缩式,全液压水平、垂直展开,提供360度连续旋转。支撑腿载荷指示器。 |
| 发动机 | 水冷8缸戴姆勒-克莱斯勒柴油发动机OM 502 LA,在1800转/分钟时输出480千瓦(653马力),在1200转/分钟时扭矩2800牛米,符合EURO MOT 3a, Tier 3和CARB标准。油箱容积590升。 |
| 传动 | ZF-TC-Tronic 12区自动。扭矩转换器和液压减速器以差异化的锁定控制转换状态。 |
| 轴 | 1+2+5驱动,可连接轴3.1-4、6-8轴转向。所有轴液压气动悬挂,可液压锁定。 |
| 轮、胎 | 16轮,14.00R25 |
| 转向 | 双回路半锁定机制,液压助力转向。 |
| 刹车 | 符合EC标准。持续动作刹车:持续减压阀,排气闸,液压减速器整合在变速箱内。 |
| 电子设备 | 24伏特系统,照明符合EC标准。 |
| 驾驶室 | 橡胶装裱的低线金属驾驶室,人体环境学设计的空气悬挂驾驶员座椅、另加一个乘客座椅,垂直可调整方向盘,外部反光镜可加热、电子调节,仪表盘清晰明了。 |
| 上层结构 | |
| 发动机 | 6缸水冷戴姆勒-克莱斯勒柴油发动机OM 906 LA,输出在2200转/分钟时为205千瓦(279马力),扭矩在1200-1600转/分钟时是1100牛米。油箱容积300升。 |
| 液压系统 | 通过5个液压回路,4个主泵控制独立活动。一个泵作用于辅助回路,一个控制泵作用于伺服控制。 |
| 线圈1 | 轴向柱塞可变位移马达,绳鼓内含行星齿轮减速器和闸 |
| 回转系统 | 轴向柱塞马达,行星齿轮,弹簧式自动闸 |
| 主臂抬升 | 两个独立活塞,带降低刹车控制阀。 |
| 控制 | 双自动中置伺服杠杆电子控制。 |
| 操作室 | 宽敞的全金属操作室,可倾斜,滑动门,大铰链窗户,顶窗防弹玻璃,完整的仪器和吊机控制,舒适的座椅,符合人体环境学的扶手和操纵杆设计,工作灯,自带的热水加热器包含定时器和“HEIZMATIC”感应热流控制,间断控制雨刮和清洗器,空调。 |
| 主臂 | 基座和四段伸缩部分由高强度细粒结构钢材制作,部分载荷下伸缩,抗锁住DEMAG椭圆截面设计,对角线自动中置滑块。 |
| 配重 | 100吨可分割。 |
| 操作员辅助 | 大屏幕图文电子指示器显示吊钩载重、名义载重、主臂长度、角度、作业半径。模拟显示指示性能使用,错误代码显示便于查找问题。整合主臂伸缩的控制系统。显示载重图表。理论和实际支撑腿承重显示。此外还备有:绳缆和吊臂降低动作的限制开关,压力释放和载重持续阀门,线圈转动指示器和风速计。 |
| 可选设备 | |
| 超级提拉装置 | 这一附件装置用来提升起重能力,包括折叠的吊臂提拉系统,在0度、30度、60度状态工作。主臂提拉系统会自动根据主臂伸缩调节绳缆长度。当不需要时,可以降低附在主臂上。(要注意轴重问题)。 |
| 主臂延长臂 | 栅格延长臂,包括90米可动臂,6-30米长,从12米长度开始可以有0度、20度、40度眼神。 |
| 固定式飞臂 | 固定的栅格式吊臂,包含可动臂部分,8.4米–62.4米长。 |
| 可动式飞臂 | 24–90米,另加4米的连接装置,两个可动桅杆,悬吊杆,电子设备,安全设施(使用可动飞臂需要第二个吊索) |
| 附加配重 | 80吨,安装在标准配重上,通过吊车自己安装。 |
| 附加提升腿 | 用于配合14.7米主臂的特殊作业。 |
| 线圈2 | 轴向柱塞可变位移马达,绳鼓内含行星齿轮减速器,弹簧式多盘闸,绳缆。 |
| 独立后轴转向 | |
您可能感兴趣的相关产品或信息:
- [CONRAD] TEREX-DEMAG AC500-1 SSL (PRANGL) (5) 开始工作!
- [CONRAD] TEREX-DEMAG AC500-1 SSL (PRANGL) (4) 吊臂和SSL
- [CONRAD] TEREX-DEMAG AC500-1 SSL (PRANGL) (3) 起吊准备
- [CONRAD] TEREX-DEMAG AC500-1 SSL (PRANGL) (2) 车体
- [CONRAD] Terex AC-500/2 Felbermayr 涂装 DIY超精细版
- [CONRAD] TEREX AC500-2 SSL-Class Teleskopkran, Wagenborg
- [CONRAD] TEREX DEMAG AC500 – WAGENBORG
- [CONRAD] Fly jib for DEMAG AC500 (MAMMOET livery) 德马格AC500起重机飞臂(MAMMOET涂装)
- [CONRAD] DEMAG AC500 all terrain crane (MAMMOET livery) 德马格AC500全地面起重机(MAMMOET涂装)
- [CONRAD] TEREX DEMAG AC500 – ALL

欢迎关注微信公众号

















这个怎么买啊。
网上有卖的,不过我觉得挺贵的。。。
哇!好复杂啊
很经典的模型款式。MAMMOET就选过这个型号做涂装。